2-х комнатная квартира 52.21m2 с видом на море № А405

  • Cделка
  • Покупка
  • Тип
  • Квартира
  • Площадь
  • 52 m2
  • Этажей
  • 9
  • Комнат
  • 2
Инвестиционно-строительная компани «Nova Gradnja Stroy-Invest» представляет Вашему вниманию наш новый проект эксклюзивный мульти-комплекс «PORTO BUDVA» с выходом на улицу Медитеранская и Променад, в самом сердце Будвы!
Инвестируйте в строительство жилья на начальном этапе и получайте доход!
Антикризисное решение!
Отличное местоположение объекта, всего 20 метров до пляжа!
Вид на море!
Отличное предложение для инвестиций!
Рассрочка на 2 года на квартиры и 1 год на коммерческие помещения!
После сдачи в эксплуатацию объекта, цены возрастут на 50%!
Предоставляются БОЛЬШИЕ скидки при покупке более одной квартиры и при различных способах оплаты.
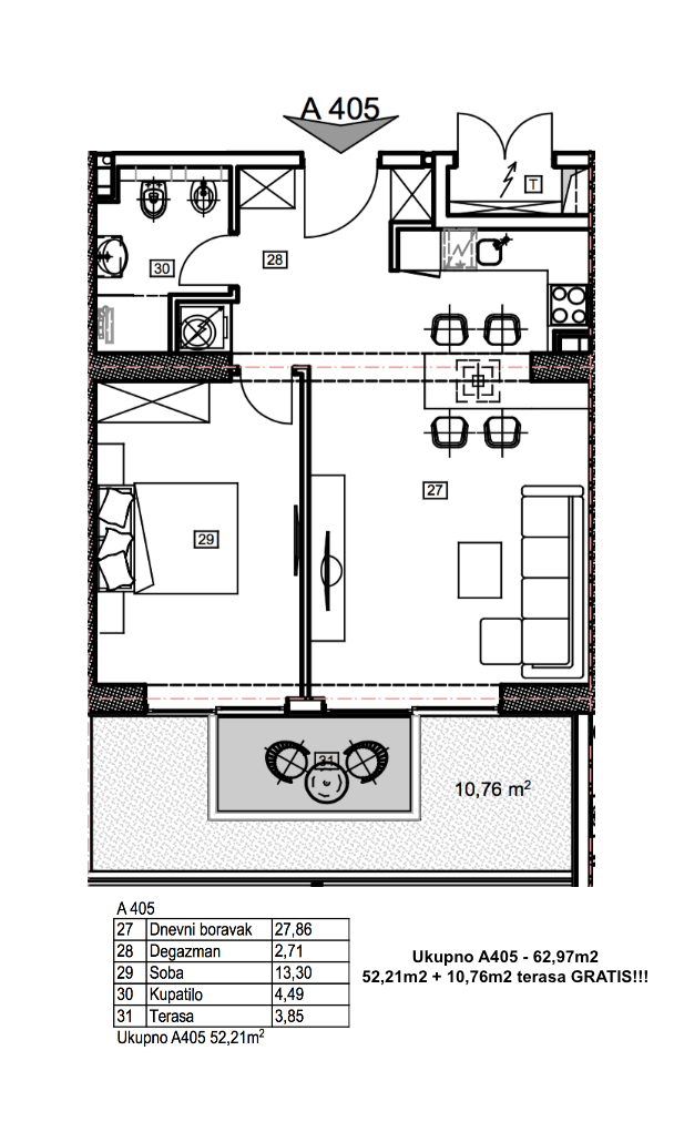
2-х комнатная квартира № А405 в эксклюзивном мульти-комплексе «Porto Budva» с торговым центром 8000 м2 и СПА-центром 3500 м2 с широким спектором услуг с открытым и крытым бассейнами!
Квартиры на четвертом  этажах ( высота шестого этажей ).
В стоимость квартир включена внутренняя отделка « под ключ » с дизайнерским ремонтом !
Квартира с видом на море и крепость Старого города с одной спальней площадью 52.21 м2, которая оформляется по документам и идет в расчет оплаты +  10.76m2 терраса с озеленением в подарок!

Стоимость 182 735е

Квартира состоит из:
Гостинной совмещённой с кухней 28.47 м2
Спальня 13.17 м2
Гардеробная 2.92 м2
Совмещённый санузел 4.5 м2
Терраса 3.85 м2

Внутренняя отделка/дизайнерский ремонт!
Комнаты:
Подвесные потолки
Освещение
Обои
Обогрев полов
Дубовый паркет  1-ого класса
Ванная:
Сантехника:  Villeroy&Boch ( душевая кабина или ванна )
Мрамор
Гранит фирми «Травертини»
Мозаичная плитка из венецианского стекла фирми «Валентино»
Обогрев полов
Фасад: гранит бежевого цвета фирмы  «Травертини» , трёхкамерные стеклопакеты.
  Управляющая компания предоставляет услугу для сдачи Вашей квартиры в аренду в течение года!
  Обслуживание дома!
  Видеонаблюдение!
  Цена квартир включает стоимость дизайнерской отделки премиум-класса!
  Дополнительное оснащение по Вашему желанию!
  Возможность перепланировки квартиры на стадии строительства !
  Все материалы для квартир Вы сможете непосредственно выбрать у нас!
  Полное сопровождение сделки!
  Для клиентов предоставляются бесплатные юридические услуги!
  При приобретении недвижимости предоставляется вид на жительства в солнечной Черногории на год

Срок сдачи коммерческого помещения-конец 2017 года.
Срок сдачи  - конец 2018 года
	
С уважениeм/Best regards/Sa poštovanjem
Ana Golubović - Sales Director
+38268132 995
ОФИС ПРОДАЖ/SALES OFFICE
ОФИС ПРОДАЖ 

Медитеранская улица 20, возле Главной почты, Будва-центр
Тел/Viber +382 68 132 995

Инвестиционно - строительная компания NOVA GRADNJA - ALART CENTAR - BUDVA CG
8 800 200 1 333 бесплатный звонок для Росси

www.chernogoriyastroyinvest.com
www.portobudva.me
  • Расположение:
Страна:Черногория
Регион:Budva Municipality
Город:Budva
Тип недвижимости:Квартира
  • Характеристики
Год постройки:2018
Комнат:2
Спальных:1
Кол-во кухонь:1
Кол-во туалетов:1
Жилая Площадь (м2):52
  • Удобства
Покрытие пола:Плитка, Ламинат, Линолеум, Паркет, Ковровое, Дерево, Мрамор, Другое
Тип Кухни:Открытая кухня
Прочие удобства:Кладовая, Гардероб, Гостевой туалет
Охрана/Безопасность:Сигнализация, CCTV, Немедленный вызов помощи, Охрана, Детекторы дыма, Другое
Оснащение:Лифт, Балкон/Терраса, Кондиционер, Сауна
Отопление:Электрическое
Меблировка:Отсутствует
Оконные рамы:Алюминивые
Окна:Звукоизоляционные, Солнцезащитные, Теплостойкие, Бронированные
Вид из окон:На море/океан, На старый город

182 735 €

210 497 $
16 873 795 ₽

На карте

Другие объекты данного продавца