Дом у моря

  • Cделка
  • Покупка
  • Тип
  • Дом на одного хозяина
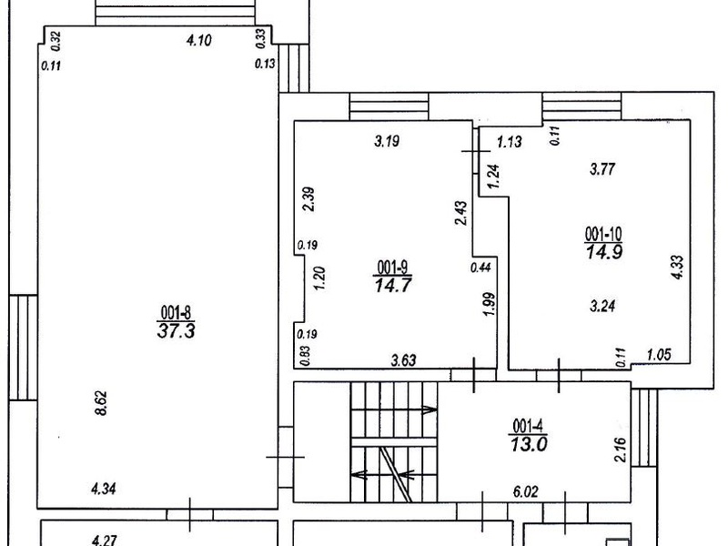
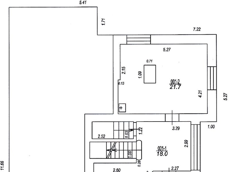
  • Площадь
  • 377 m2
  • Этажей
  • 3
  • Комнат
  • 10
Берег моря. Зимний дом в уютном городке в хорошем месте. До моря 600 м по асфальтированной дороге. Кухня со встроенным холодильником и посудомоечной машиной. Отдельная гардеробная комната. Трехфазное эл-во, ухоженный газон, огороженная территория, брусчатка, сухой подвал, гараж с ямой. Все коммуникации, возможно подключить газ (газопровод проходит по улице рядом с домом).  

До центра Риги 43 км. Очень хорошее автобусное сообщение. По близости магазины, рестораны, аптека, рынок. В центре Лапмежциемса находится самоуправление, школа, детский сад, спортивная арена, дом культуры, библиотека, докторат, почта.  

Без отягощений.  Продаёт владелец без посредников. 
  • Расположение:
Страна:Латвия
Регион:Jūrmala
Город:Jūrmala
Тип недвижимости:Дом на одного хозяина
  • Характеристики
Год постройки:2006
Комнат:10
Спальных:8
Кол-во кухонь:1
Жилая Площадь (м2):283
Общая Площадь (м2):377
Земельный участок (м2):1240
  • Удобства
Покрытие пола:Плитка, Ламинат, Линолеум
Тип Кухни:Встроенная кухня
Ванная комната:Джакузи, Туалет, Окно
Прочие удобства:Кладовая, Гардероб, Цокольный
Оснащение:Сад
Отопление:Центральное
Меблировка:Частичная
Оконные рамы:Деревянные, Пластиковые
Дополнительное оборудование:Холодильник, Плита

115 700 €

134 909 $
10 895 655 ₽

На карте

Другие объекты данного продавца