2-х комнатные квартирыа 52.91m2 A803

  • Cделка
  • Покупка
  • Тип
  • Квартира
  • Площадь
  • 52 m2
  • Этажей
  • 9
  • Комнат
  • 2
 Инвестиционно-строительная компани «Nova Gradnja Stroy-Invest» представляет Вашему вниманию наш новый проект эксклюзивный мульти-комплекс «PORTO BUDVA» с выходом на улицу Медитеранская и Променад, в самом сердце Будвы!

  Инвестируйте в строительство жилья на начальном этапе и получайте доход!
Антикризисное решение!
Отличное местоположение объекта, всего 20 метров до пляжа!
Вид на море!
Отличное предложение для инвестиций!
Рассрочка на 2 года на квартиры и 1 год на коммерческие помещения!
После сдачи в эксплуатацию объекта, цены возрастут на 50%!
Предоставляются БОЛЬШИЕ скидки при покупке более одной квартиры и при различных способах оплаты !

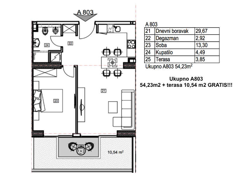
  2-х комнатная квартира № A803 в эксклюзивном мульти-комплексе «Porto Budva» с торговым центром 8000 м2 и СПА-центром 3500 м2 с широким спектором услуг с открытым и крытым бассейнами!

Квартира на 8 этаже ( высота 9 этажа ). Высота потолков 3.4 м!

В стоимость квартир включена внутренняя отделка «под ключ» с дизайнерским ремонтом !

  Квартира с прямым видом на море и крепость Старого города с одной спальней площадью 54.23м2, которая оформляется по документам и идет в расчет оплаты + 10.54m2 терраса с озеленением в подарок!

Стоимостью 260.304 е
 
Квартира состоит из:
Гостинной совмещённой с кухней 21.98 м2
Спальня 10.46 м2 
Гардеробная 2.47 м2
Совмещённый санузел 4.23 м2
Терраса 3.6 м2

Внутренняя отделка/дизайнерский ремонт!

Комнаты:
Подвесные потолки
Освещение
Обои
Обогрев полов
Дубовый паркет  1-ого класса

Ванная:
Сантехника:  Villeroy&Boch ( душевая кабина или ванна )
Мрамор
Гранит фирми «Травертини»
Мозаичная плитка из венецианского стекла фирми «Валентино»
Обогрев полов

Фасад: гранит бежевого цвета фирмы  «Травертини» , трёхкамерные стеклопакеты.

	Управляющая компания предоставляет услуги перепродажи и сдачи Вашей квартиры в аренду в течение года!
	Обслуживание дома!
	Видеонаблюдение!
	Цена квартир включает стоимость дизайнерской отделки премиум-класса!
	Дополнительное оснащение по Вашему желанию!
	Возможность перепланировки квартиры на стадии строительства !
	Все материалы для квартир Вы сможете непосредственно выбрать у нас!
	Полное сопровождение сделки!
	Для клиентов предоставляются бесплатные юридические услуги!
	При приобретении недвижимости предоставляется вид на жительства в солнечной Черногории на год!

Срок сдачи коммерческого помещения-конец  2017 года.
Срок сдачи первой очереди - конец 2018 года

С уважениeм/Best regards/Sa poštovanjem
Ana Golubović - Sales Director
+38268132 995
ОФИС ПРОДАЖ/SALES OFFICE
ОФИС ПРОДАЖ 

Медитеранская улица 20, возле Главной почты, Будва-центр
Тел/Viber +382 68 132 995

Инвестиционно - строительная компания NOVA GRADNJA - ALART CENTAR - BUDVA CG
8 800 200 1 333 бесплатный звонок для Росси

www.chernogoriyastroyinvest.com
www.portobudva.me
  • Расположение:
Страна:Черногория
Регион:Budva Municipality
Город:Budva
Тип недвижимости:Квартира
  • Характеристики
Год постройки:2017
Комнат:2
Спальных:1
Кол-во кухонь:1
Кол-во туалетов:1
Жилая Площадь (м2):52
Земельный участок (м2):6000
  • Удобства
Покрытие пола:Плитка, Ламинат, Паркет, Ковровое, Дерево, Мрамор
Тип Кухни:Открытая кухня
Прочие удобства:Кладовая, Гардероб
Охрана/Безопасность:Сигнализация, CCTV, Немедленный вызов помощи, Охрана, Детекторы дыма
Оснащение:Лифт, Зимний сад, Балкон/Терраса, Кондиционер, Сауна
Отопление:Электрическое
Меблировка:Отсутствует
Оконные рамы:Алюминивые
Окна:Звукоизоляционные, Солнцезащитные, Теплостойкие, Бронированные
Вид из окон:На море/океан

250 608 €

288 682 $
23 141 204 ₽

На карте

Другие объекты данного продавца