2-х комнатные квартирыа 50.42m2 B806

  • Cделка
  • Покупка
  • Тип
  • Квартира
  • Площадь
  • 50 m2
  • Этажей
  • 9
  • Комнат
  • 2
Инвестиционно-строительная компани «Nova Gradnja Stroy-Invest» представляет Вашему вниманию наш новый проект эксклюзивный мульти-комплекс «PORTO BUDVA» с выходом на улицу Медитеранская и Променад, в самом сердце Будвы!

Инвестируйте в строительство жилья на начальном этапе и получайте доход!
Антикризисное решение!
Отличное местоположение объекта, всего 20 метров до пляжа!
Вид на море!
Отличное предложение для инвестиций!
Рассрочка на 2 года на квартиры и 1 год на коммерческие помещения!
После сдачи в эксплуатацию объекта, цены возрастут на 50%!
Предоставляются БОЛЬШИЕ скидки при покупке более одной квартиры и при различных способах оплаты !

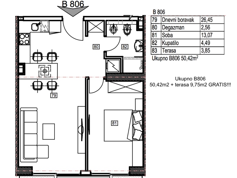
2-х комнатная квартиа № В806 в эксклюзивном мульти-комплексе «Porto Budva» с торговым центром 8000 м2 и СПА-центром 3500 м2 с широким спектором услуг с открытым и крытым бассейнами!

Квартира на 8 этаже ( высота 9 этажа ). Высота потолков 3.4 м!

В стоимость квартир включена внутренняя отделка «под ключ» с дизайнерским ремонтом !

Квартира с видом на море и крепость Старого города, с одной спальней площадью 50.42 м2, которая оформляется по документам и идет в расчет оплаты +  терраса с озеленением в подарок!

Стоимость 252.100 е

Квартира состоит из:
Гостинной совмещённой с кухней 26.36 м2
Спальня 13 м2
Гардеробная 2.62 м2
Совмещённый санузел 4.5 м2
Терраса 3.85 м2

Внутренняя отделка/дизайнерский ремонт!

Комнаты:
Подвесные потолки
Освещение
Обои
Обогрев полов
Дубовый паркет  1-ого класса

Ванная:
Сантехника:  Villeroy&Boch ( душевая кабина или ванна )
Мрамор
Гранит фирми «Травертини»
Мозаичная плитка из венецианского стекла фирми «Валентино»
Обогрев полов

Фасад: гранит бежевого цвета фирмы  «Травертини» , трёхкамерные стеклопакеты.

Управляющая компания предоставляет услуги перепродажи и сдачи Вашей квартиры в аренду в течение года!
Обслуживание дома!
Видеонаблюдение!
Цена квартир включает стоимость дизайнерской отделки премиум-класса!
Дополнительное оснащение по Вашему желанию!
Возможность перепланировки квартиры на стадии строительства !
Все материалы для квартир Вы сможете непосредственно выбрать у нас!
Полное сопровождение сделки!
Для клиентов предоставляются бесплатные юридические услуги!
При приобретении недвижимости предоставляется вид на жительства в солнечной Черногории на год!

Срок сдачи коммерческого помещения - конец  2017 года.
Срок сдачи  - конец 2018 года

Sales Office/Офис продаж	

Tel/Viber/Whats App:+382 68 132 995
Investiciono-gradjevinska kompanija "Nova Gradnja - Alart Centar-Budva CG" 
SHOPPING CENTAR & APARTMENTS "PORTO BUDVA"
anagolubovic@mail.ru
novagradnja@mail.ru
www.chernogoriyastroyinvest.com
  • Расположение:
Страна:Черногория
Регион:Budva Municipality
Город:Budva
Тип недвижимости:Квартира
  • Характеристики
Год постройки:2018
Комнат:2
Спальных:1
Кол-во кухонь:1
Кол-во туалетов:1
Жилая Площадь (м2):50
  • Удобства
Покрытие пола:Плитка, Ламинат, Паркет, Ковровое, Дерево, Мрамор
Тип Кухни:Открытая кухня
Ванная комната:Душ
Прочие удобства:Кладовая, Гардероб
Охрана/Безопасность:Сигнализация, CCTV, Немедленный вызов помощи, Охрана
Оснащение:Лифт, Зимний сад, Балкон/Терраса, Кондиционер, Сауна
Отопление:Электрическое
Меблировка:Отсутствует
Оконные рамы:Алюминивые
Окна:Звукоизоляционные, Солнцезащитные, Теплостойкие, Бронированные
Вид из окон:На море/океан, На старый город

252 100 €

290 401 $
23 278 976 ₽

На карте

Другие объекты данного продавца