2-х комнатная квартира № С203 (высота четвертого) с видом на море в эксклюзивном мульти-комплексе «Porto Budva»

  • Cделка
  • Покупка
  • Тип
  • Квартира
  • Площадь
  • 54 m2
  • Этажей
  • 9
  • Комнат
  • 2
Инвестиционно-строительная компания «Nova Gradnja Budva– Alart Centar-Budva CG» представляет Вашему вниманию наш новый проект эксклюзивный мульти-комплекс «PORTO BUDVA» с выходом на улицу Медитеранская и Променад, в самом сердце Будвы!
Инвестируйте в строительство жилья на начальном этапе и получайте доход!
Антикризисное решение!
Отличное местоположение объекта, всего 20 метров до пляжа!
Вид на море!
Отличное предложение для инвестиций!
Рассрочка на 2 года на квартиры и 1 год на коммерческие помещения!
После сдачи в эксплуатацию объекта, цены возрастут на 50%!
Предоставляются БОЛЬШИЕ скидки при покупке более одной квартиры и при различных способах оплаты !

2-х комнатная квартира № С203 (высота четвертого)  с видом на море в эксклюзивном мульти-комплексе «Porto Budva» с торговым центром 8000 м2 и СПА-центром 3500 м2 с широким спектром услуг, c конференц-залом и рестораном, открытым (28мx20mx8m) и закрытым бассейнами (20mx8mx1.8m)!

Высота потолков 3.4 м.
В стоимость квартир включена внутренняя отделка «под ключ» с дизайнерским ремонтом !
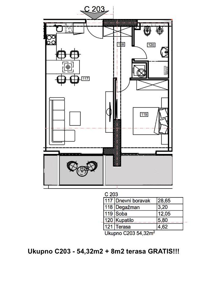
Квартира с видом на море, Старый город и улицу Медитеранскую площадью 54.32 м2, которая оформляется по документам и идет в расчет оплаты +

8 м2 терраса с озеленением в подарок!

Ежемесячная плата за содержание дома 0,50 е ( обслуживание лифта,уборка общих внутренних помещений и прилежащей территории ).

Квартира состоит из:
Гостинной совмещённой с кухней 28,65м2
комната 12,05 м2
Совмещённый санузел 5,80 м2
Терраса 4,62 м2
Гардероб 3,20 м2
Внутренняя отделка/дизайнерский ремонт!

Комнаты:
Подвесные потолки
Освещение
Обои
Обогрев полов
Дубовый паркет 1-ого класса
Ванная:
Сантехника: Villeroy&Boch ( душевая кабина или ванна )
Мрамор
Гранит фирми «Травертини»
Мозаичная плитка из венецианского стекла фирми «Валентино»
Обогрев полов
Фасад: гранит бежевого цвета фирмы «Травертини» , трёхкамерные стеклопакеты.
⎫ Управляющая компания предоставляет услуги перепродажи и сдачи Вашей квартиры в аренду в течение года!
⎫ Обслуживание дома!
⎫ Видеонаблюдение!
⎫ Цена квартир включает стоимость дизайнерской отделки премиум-класса!
⎫ Дополнительное оснащение по Вашему желанию!
⎫ Возможность перепланировки квартиры на стадии строительства !
⎫ Все материалы для квартир Вы сможете непосредственно выбрать у нас!
⎫ Полное сопровождение сделки!
⎫ Для клиентов предоставляются бесплатные юридические услуги!
⎫ При приобретении недвижимости предоставляется вид на жительство в солнечной Черногории на год!

Срок сдачи объекта — конец 2018 года. 
  • Расположение:
Страна:Черногория
Регион:Budva Municipality
Город:Budva
Тип недвижимости:Квартира
  • Характеристики
Год постройки:2018
Комнат:2
Спальных:1
Кол-во кухонь:1
Жилая Площадь (м2):54
Земельный участок (м2):6000
  • Удобства
Покрытие пола:Плитка, Ламинат, Паркет, Ковровое, Дерево, Мрамор
Ванная комната:Душ
Прочие удобства:Кладовая, Гардероб
Охрана/Безопасность:Сигнализация, CCTV, Немедленный вызов помощи, Охрана, Детекторы дыма
Оснащение:Лифт, Сад, Зимний сад, Кондиционер, Камин, Сауна
Отопление:Электрическое
Меблировка:Отсутствует
Оконные рамы:Алюминивые
Окна:Звукоизоляционные, Солнцезащитные, Теплостойкие, Бронированные
Вид из окон:На горы

179 256 €

209 670 $
16 580 319 ₽

На карте

Другие объекты данного продавца