2-х комнатная квартира № С204 в эксклюзивном мульти-комплексе «Porto Budva»

  • Cделка
  • Покупка
  • Тип
  • Квартира
  • Площадь
  • 55 m2
  • Этажей
  • 9
  • Комнат
  • 2
Инвестиционно-строительная компания «Nova Gradnja Alart Centar Budva CG» представляет Вашему вниманию наш новый проект эксклюзивный мульти-комплекс «PORTO BUDVA» с выходом на улицу Медитеранская и Променад, в самом сердце Будвы!

Инвестируйте в строительство жилья на начальном этапе и получайте доход!

Антикризисное решение!

Отличное местоположение объекта, всего 20 метров до пляжа!

Вид на море!

Отличное предложение для инвестиций!

Рассрочка на 2 года на квартиры и 1 год на коммерческие помещения!

После сдачи в эксплуатацию объекта, цены возрастут на 50%!

Предоставляются БОЛЬШИЕ скидки при покупке более одной квартиры и при различных способах оплаты !

2-х комнатная квартира № С204 в эксклюзивном мульти-комплексе «Porto Budva» с торговым центром 8000 м2 иСПА-центром 3500 м2 с широким спектром услуг, медицинским центром, открытым и крытым бассейнами!

Квартиры на втором  этаже ( высота четвертого этажа ).

В стоимость квартир включена внутренняя отделка « под ключ » с дизайнерским ремонтом !

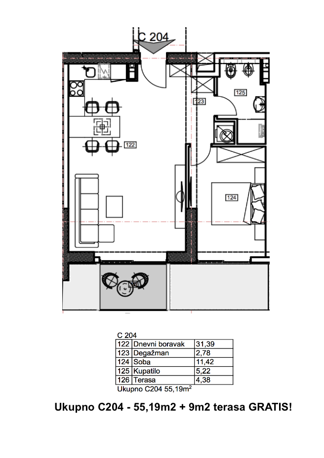
Квартира с прямым видом на море и крепость Старого города с одной спальней площадью 55.19 м2 +  9 м2 терраса с озеленением в подарок!

Ежемесячная плата за содержание дома 0,50е/м2 (обслуживание лифта,уборка общих внутренних помещений и прилежащей территории).

Квартира состоит из:

Гостинной совмещённой с кухней 31.39 м2

Спальня 11.42 м2

Гардеробная 2.76 м2

Совмещённый санузел 5.22 м2

Терраса 4.38 м2

Внутренняя отделка/дизайнерский ремонт!

Комнаты:

Подвесные потолки

Освещение

Обои

Обогрев полов

Дубовый паркет  1-ого класса

Ванная:

Сантехника:  Villeroy&Boch ( душевая кабина или ванна )

Мрамор

Гранит фирми «Травертини»

Мозаичная плитка из венецианского стекла фирми «Валентино»

Обогрев полов

Фасад: гранит бежевого цвета фирмы  «Травертини» , трёхкамерные стеклопакеты.

  Управляющая компания предоставляет услуги перепродажи и сдачи Вашей квартиры в аренду в течение года!
  Обслуживание дома!
  Видеонаблюдение!
  Цена квартир включает стоимость дизайнерской отделки премиум-класса!
  Дополнительное оснащение по Вашему желанию!
  Возможность перепланировки квартиры на стадии строительства !
  Все материалы для квартир Вы сможете непосредственно выбрать у нас!
  Полное сопровождение сделки!
  Для клиентов предоставляются бесплатные юридические услуги!
  При приобретении недвижимости предоставляется вид на жительства в солнечной Черногории на год!
Срок сдачи объекта — конец  2018 года.

  

  • Расположение:
Страна:Черногория
Регион:Budva Municipality
Город:Budva
Тип недвижимости:Квартира
  • Характеристики
Год постройки:2018
Комнат:2
Спальных:1
Кол-во кухонь:1
Кол-во туалетов:1
Жилая Площадь (м2):55
Земельный участок (м2):6000
  • Удобства
Покрытие пола:Плитка, Ламинат, Паркет, Ковровое, Дерево, Мрамор
Ванная комната:Душ
Прочие удобства:Гардероб, Кладовая
Охрана/Безопасность:Сигнализация, CCTV, Немедленный вызов помощи, Охрана, Детекторы дыма
Оснащение:Лифт, Сад, Зимний сад, Кондиционер, Камин
Отопление:Электрическое
Меблировка:Отсутствует
Оконные рамы:Алюминивые
Окна:Звукоизоляционные, Солнцезащитные, Теплостойкие, Бронированные
Вид из окон:На море/океан, На горы

182 127 €

213 028 $
16 845 873 ₽

На карте

Другие объекты данного продавца