2-х комнатная квартира № С214 (высота четвертого этажа) с видом на море и Старый город в эксклюзивном мульти-комплексе «Porto Budva»

  • Cделка
  • Покупка
  • Тип
  • Квартира
  • Площадь
  • 60 m2
  • Этажей
  • 9
  • Комнат
  • 2
Инвестиционно-строительная компания «Nova Gradnja Alart Centar Budva CG » представляет Вашему вниманию наш новый проект эксклюзивный мульти-комплекс «PORTO BUDVA» с выходом на улицу Медитеранская и Променад, в самом сердце Будвы!

Инвестируйте в строительство жилья на начальном этапе и получайте доход!

Антикризисное решение!

Отличное местоположение объекта, всего 20 метров до пляжа!

Вид на море!

Отличное предложение для инвестиций!

Рассрочка на 2 года на квартиры и 1 год на коммерческие помещения!

После сдачи в эксплуатацию объекта, цены возрастут на 50%!

Предоставляются БОЛЬШИЕ скидки при покупке более одной квартиры и при различных способах оплаты !

2-х комнатная квартира № С214 (высота четвертого этажа) с видом на море  и Старый город в эксклюзивном мульти-комплексе «Porto Budva» с торговым центром 8000 м2 и СПА-центром 3500 м2 с широким спектром услуг, медицинским центром, открытым и крытым бассейнами!

Высота потолков 3.4 м.
В стоимость квартир включена внутренняя отделка «под ключ» с дизайнерским ремонтом !
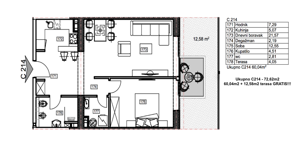
Квартира с прямым видом на море площадью 60,04 м2, которая оформляется по документам и идет в расчет оплаты + 12,58 м2  терраса с озеленением в подарок!

Цена: 3300e/м2 при рассрочке на 2-а года.

Ежемесячная плата за содержание дома 0,50е/м2 ( обслуживание лифта,уборка общих внутренних помещений и прилежащей территории ).

комната 12,55 м2

кухня 5,07 м2

гардероб 2,19 м2

гостиная 21, 57 м2

прихожая 7, 29 м2
Совмещённый санузел 4,51 м2
Терраса 4,05 м2

WC 2,81 m2

Внутренняя отделка/дизайнерский ремонт!

Комнаты:
Подвесные потолки
Освещение
Обои
Обогрев полов
Дубовый паркет 1-ого класса
Ванная:
Сантехника: Villeroy&Boch ( душевая кабина или ванна )
Мрамор
Гранит фирми «Травертини»
Мозаичная плитка из венецианского стекла фирми «Валентино»
Обогрев полов
Фасад: гранит бежевого цвета фирмы «Травертини» , трёхкамерные стеклопакеты.
⎫ Управляющая компания предоставляет услуги перепродажи и сдачи Вашей квартиры в аренду в течение года!
⎫ Обслуживание дома!
⎫ Видеонаблюдение!
⎫ Цена квартир включает стоимость дизайнерской отделки премиум-класса!
⎫ Дополнительное оснащение по Вашему желанию!
⎫ Возможность перепланировки квартиры на стадии строительства !
⎫ Все материалы для квартир Вы сможете непосредственно выбрать у нас!
⎫ Полное сопровождение сделки!
⎫ Для клиентов предоставляются бесплатные юридические услуги!
⎫ При приобретении недвижимости предоставляется вид на жительство в солнечной Черногории на год!

Срок сдачи объекта -конец 2018 года. 

  • Расположение:
Страна:Черногория
Регион:Budva Municipality
Город:Budva
Тип недвижимости:Квартира
  • Характеристики
Год постройки:2018
Комнат:2
Спальных:1
Кол-во кухонь:1
Жилая Площадь (м2):60
Земельный участок (м2):6000
  • Удобства
Покрытие пола:Плитка, Ламинат, Паркет, Ковровое, Дерево, Мрамор
Ванная комната:Душ
Охрана/Безопасность:Сигнализация, CCTV, Немедленный вызов помощи, Охрана, Детекторы дыма
Оснащение:Лифт, Сад, Зимний сад, Балкон/Терраса, Кондиционер, Камин, Сауна
Отопление:Электрическое
Меблировка:Отсутствует
Оконные рамы:Алюминивые
Окна:Звукоизоляционные, Солнцезащитные, Теплостойкие, Бронированные
Вид из окон:На море/океан

198 132 €

230 651 $
17 803 413 ₽

На карте

Другие объекты данного продавца