2-х комнатная квартира № С215 (высота четвертого этажа) с видом на море и старый город

  • Cделка
  • Покупка
  • Тип
  • Квартира
  • Площадь
  • 60 m2
  • Этажей
  • 9
  • Комнат
  • 2
Инвестиционно-строительная компания «Nova Gradnja Alart Centar Budva CG » представляет Вашему вниманию наш новый проект эксклюзивный мульти-комплекс «PORTO BUDVA» с выходом на улицу Медитеранская и Променад, в самом сердце Будвы!

Инвестируйте в строительство жилья на начальном этапе и получайте доход!

Антикризисное решение!

Отличное местоположение объекта, всего 20 метров до пляжа!

Вид на море!

Отличное предложение для инвестиций!

Рассрочка на 2 года на квартиры и 1 год на коммерческие помещения!

После сдачи в эксплуатацию объекта, цены возрастут на 50%!

Предоставляются БОЛЬШИЕ скидки при покупке более одной квартиры и при различных способах оплаты !

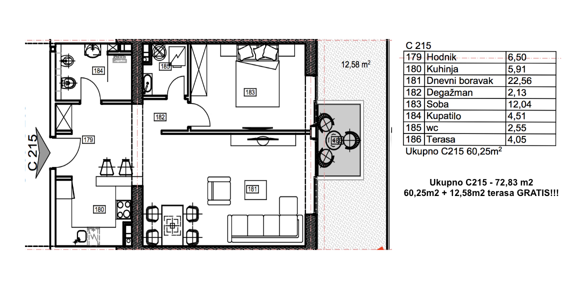
2-х комнатная квартира № С215 (высота четвертого  этажа) с видом на море  и старый город в эксклюзивном мульти-комплексе «Porto Budva» с торговым центром 8000 м2 и СПА-центром 3500 м2 с широким спектром услуг, медицинским центром, открытым и крытым бассейнами!

Высота потолков 3.4 м.
В стоимость квартир включена внутренняя отделка «под ключ» с дизайнерским ремонтом !
Квартира с прямым видом на море площадью 60,25 м2, которая оформляется по документам и идет в расчет оплаты + 12,58 m2 терраса с озеленением в подарок!

Цена: 3300e/м2 при рассрочке на 2-а года.
Ежемесячная плата за содержание дома 0,50е/м2 ( обслуживание лифта,уборка общих внутренних помещений и прилежащей территории ).

Квартира состоит из:

комната 12,04 м2

кухня 5,91 м2

гардероб 2,13 м2

гостиная 22, 56 м2

прихожая 6, 50 м2
Совмещённый санузел 4,51 м2

WC 2,55
Терраса 4,05 м2

Внутренняя отделка/дизайнерский ремонт!

Комнаты:
Подвесные потолки
Освещение
Обои
Обогрев полов
Дубовый паркет 1-ого класса
Ванная:
Сантехника: Villeroy&Boch ( душевая кабина или ванна )
Мрамор
Гранит фирми «Травертини»
Мозаичная плитка из венецианского стекла фирми «Валентино»
Обогрев полов
Фасад: гранит бежевого цвета фирмы «Травертини» , трёхкамерные стеклопакеты.
⎫ Управляющая компания предоставляет услуги перепродажи и сдачи Вашей квартиры в аренду в течение года!
⎫ Обслуживание дома!
⎫ Видеонаблюдение!
⎫ Цена квартир включает стоимость дизайнерской отделки премиум-класса!
⎫ Дополнительное оснащение по Вашему желанию!
⎫ Возможность перепланировки квартиры на стадии строительства !
⎫ Все материалы для квартир Вы сможете непосредственно выбрать у нас!
⎫ Полное сопровождение сделки!
⎫ Для клиентов предоставляются бесплатные юридические услуги!
⎫ При приобретении недвижимости предоставляется вид на жительство в солнечной Черногории на год!

Срок сдачи объекта — конец 2018 года.


С уважениeм/Best regards/Sa poštovanjem

Ana Golubović
Sales Director
Tel/Viber/Whats App:+382 68 132 995
Invest and construction company "Alart Centar-Budva CG" 
SHOPPING CENTAR & APARTMENTS "PORTO BUDVA"
www.portobudva.me 
www.chernogoriyastroyinvest.com

8 800 2001333 бесплатный звонок для России 

С уважениeм/Best regards/Sa poštovanjem

Ana Golubović - Sales Director
+38268132 995
 


  • Расположение:
Страна:Черногория
Регион:Budva Municipality
Город:Budva
Тип недвижимости:Квартира
  • Характеристики
Год постройки:2018
Комнат:2
Спальных:1
Кол-во кухонь:1
Жилая Площадь (м2):60
Земельный участок (м2):6000
  • Удобства
Покрытие пола:Плитка, Ламинат, Паркет, Ковровое, Дерево, Мрамор
Ванная комната:Душ
Охрана/Безопасность:Сигнализация, CCTV, Немедленный вызов помощи, Охрана, Детекторы дыма
Оснащение:Лифт, Сад, Зимний сад, Кондиционер, Камин, Сауна
Отопление:Газовое, Электрическое
Меблировка:Отсутствует
Оконные рамы:Алюминивые
Окна:Звукоизоляционные, Солнцезащитные, Теплостойкие, Бронированные
Вид из окон:На море/океан, На старый город

198 825 €

231 457 $
17 865 683 ₽

На карте

Другие объекты данного продавца