2-х комнатная квартира № C213 в эксклюзивном мульти-комплексе «Porto Budva»

  • Cделка
  • Покупка
  • Тип
  • Квартира
  • Площадь
  • 64 m2
  • Этажей
  • 9
  • Комнат
  • 2
Инвестиционно-строительная компания «Nova Gradnja Alart Centar Budva CG» представляет Вашему вниманию наш новый проект эксклюзивный мульти-комплекс «PORTO BUDVA» с выходом на улицу Медитеранская и Променад, в самом сердце Будвы!

Инвестируйте в строительство жилья на начальном этапе и получайте доход!

Антикризисное решение!

Отличное местоположение объекта, всего 20 метров до пляжа!

Вид на море!

Отличное предложение для инвестиций!

Рассрочка на 2 года на квартиры и 1 год на коммерческие помещения!

После сдачи в эксплуатацию объекта, цены возрастут на 50%!

Предоставляются БОЛЬШИЕ скидки при покупке более одной квартиры и при различных способах оплаты !

2-х комнатная квартира № C213 в эксклюзивном мульти-комплексе «Porto Budva» с торговым центром 8000 м2 иСПА-центром 3500 м2 с широким спектром услуг, медицинским центром, открытым и крытым бассейнами!

Квартира на втором этаже ( высота четвертого этажа ).

В стоимость квартир включена внутренняя отделка « под ключ » с дизайнерским ремонтом !

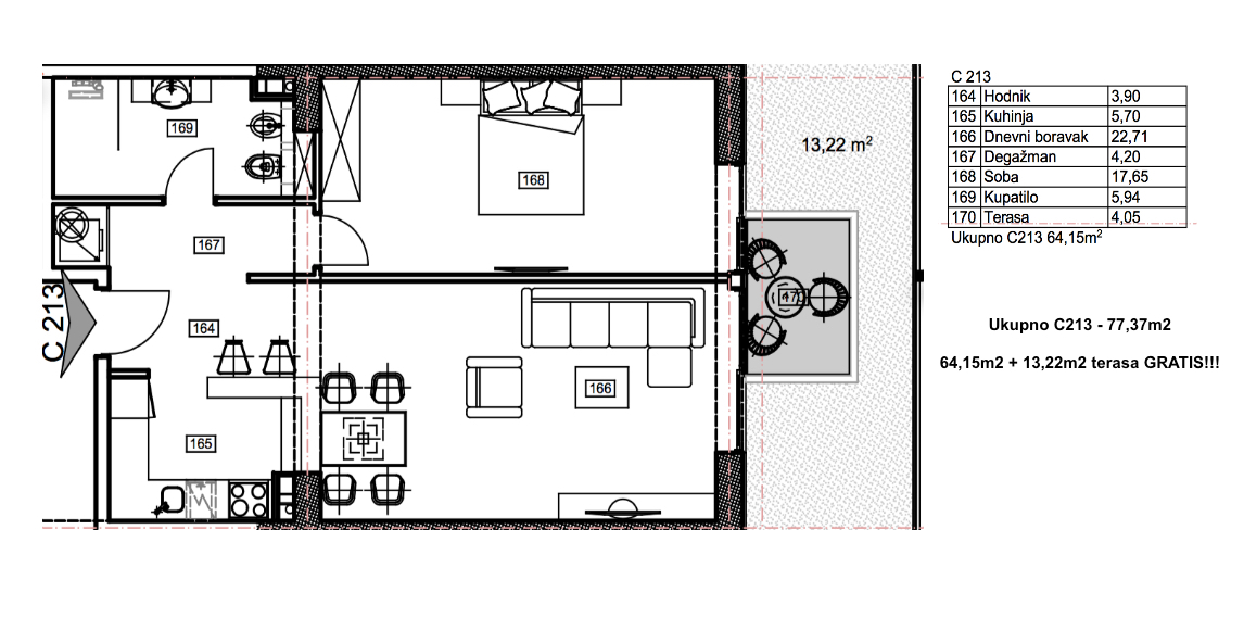
Квартира с видом на море, с одной спальней и террасой площадью 64.15 м2, которая оформляется по документам и идет в расчет оплаты + 13, 22 m2 терраса с озеленением в подарок!

Ежемесячная плата за содержание дома 0,50е/м2 ( обслуживание лифта,уборка общих внутренних помещений и прилежащей территории ).

Квартира состоит из:

Коридор 3,90 м2

Гостинной совмещённой с кухней 22.71 м2

1 спальня 17.65 м2

Гардеробная 4.20 м2

Совмещённый санузел 5.94 м2

tерраса 4.05 м2

кухня 5,70 м2

Внутренняя отделка/дизайнерский ремонт!

Комнаты:

Подвесные потолки

Освещение

Обои

Обогрев полов

Дубовый паркет 1-ого класса

Ванная:

Сантехника: Villeroy&Boch ( душевая кабина или ванна )

Мрамор

Гранит фирми «Травертини»

Мозаичная плитка из венецианского стекла фирми «Валентино»

Обогрев полов

Фасад: гранит бежевого цвета фирмы «Травертини» , трёхкамерные стеклопакеты.

Управляющая компания предоставляет услуги перепродажи и сдачи Вашей квартиры в аренду в течение года!
Обслуживание дома!
Видеонаблюдение!
Цена квартир включает стоимость дизайнерской отделки премиум-класса!
Дополнительное оснащение по Вашему желанию!
Возможность перепланировки квартиры на стадии строительства !
Все материалы для квартир Вы сможете непосредственно выбрать у нас!
Полное сопровождение сделки!
Для клиентов предоставляются бесплатные юридические услуги!
При приобретении недвижимости предоставляется вид на жительства в солнечной Черногории на год!
Срок сдачи объекта -конец 2018 года.

 С уважениeм/Best regards/Sa poštovanjem

Ana Golubović
Sales Director
Tel/Viber/Whats App:+382 68 132 995
Invest and construction company "Alart Centar-Budva CG" 
SHOPPING CENTAR & APARTMENTS "PORTO BUDVA"
www.portobudva.me 
www.chernogoriyastroyinvest.com

8 800 2001333 бесплатный звонок для России 

С уважениeм/Best regards/Sa poštovanjem

Ana Golubović - Sales Director
+38268132 995
 

  • Расположение:
Страна:Черногория
Регион:Budva Municipality
Город:Budva
Тип недвижимости:Квартира
  • Характеристики
Год постройки:2018
Комнат:2
Спальных:1
Кол-во кухонь:1
Кол-во туалетов:1
Жилая Площадь (м2):64
Земельный участок (м2):6000
  • Удобства
Покрытие пола:Плитка, Ламинат, Паркет, Ковровое, Дерево, Мрамор
Ванная комната:Душ
Охрана/Безопасность:Сигнализация, CCTV, Немедленный вызов помощи, Охрана, Детекторы дыма
Оснащение:Лифт, Сад, Балкон/Терраса, Кондиционер, Камин, Сауна
Отопление:Электрическое
Меблировка:Отсутствует
Оконные рамы:Алюминивые
Окна:Звукоизоляционные, Солнцезащитные, Теплостойкие, Бронированные
Вид из окон:На море/океан, На старый город

211 695 €

246 440 $
19 022 134 ₽

На карте

Другие объекты данного продавца