Жизнь высокого класса в Далмации – вилла со своим бассейном на острове Брач

  • Cделка
  • Покупка
  • Тип
  • Элитная
  • Площадь
  • 224 m2
  • Этажей
  • 2
  • Комнат
  • 4
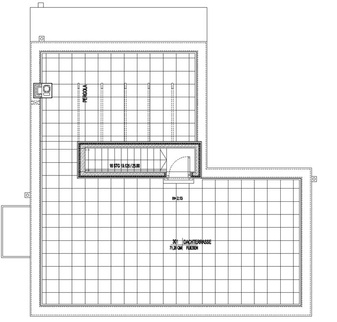
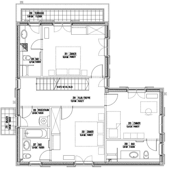
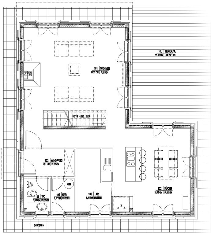
На самом высоком месте в Сплитска на склоне холма находится комплекс вилл с волшебным видом на далматинское море с современной средиземноморской архитектурой под немецко/хорватским руководством. В виллах оснащение высшего качества – каждый дом имеет собственный бассейн – качество изготовления соответствует немецким стандартам. Проект предназначен для покупателей,  для которых важны качество и безопасность. Не только бассейн и средиземноморский сад, но и внутренняя отделка дома очень высокого уровня. Некоторые особенности: пластковые окна, средиземноморские каменные полы, открытый камин в гостиной, паркет в спальных, кондиционеры, также подогрев полов во всех ванных комнатах, современная арматура в ванной и высококачественная кухонная техника, большая терраса с деревянной беседкой, ограда с электрическими воротами, 2 автостоянки, фасад с замысловатой архитектурой с цветной штукатуркой и каменной облицовкой. 
  • Расположение:
Страна:Хорватия
Регион:Split-Dalmatia County
Город:Split
Тип недвижимости:Элитная
  • Характеристики
Год постройки:2010
Комнат:4
Жилая Площадь (м2):224

680 000 €

807 198 $
62 307 333 ₽

На карте

Другие объекты данного продавца